Postivarikko – Yhteisöllinen asukastila
Tilaaja
APK-Kiinteistöt Oy
Vuosi
04/2022-05/2023
Laajuus
1 150 m²
Sijainti
Helsinki
Pääsuunnittelija
Inaro
Urakkamuoto
KVR-urakka
Postipuiston asukkaiden yhteinen monitoimitila
Helsingin Pohjois-Pasilan uuden asuinalueen Postipuiston asuintalojen yhteistilat kootaan Rullakkotorin laidalle isoksi, yhteiseksi monikäyttöiseksi asukastilaksi (1 150 m²). Asukastila valmistui toukokuussa 2023.
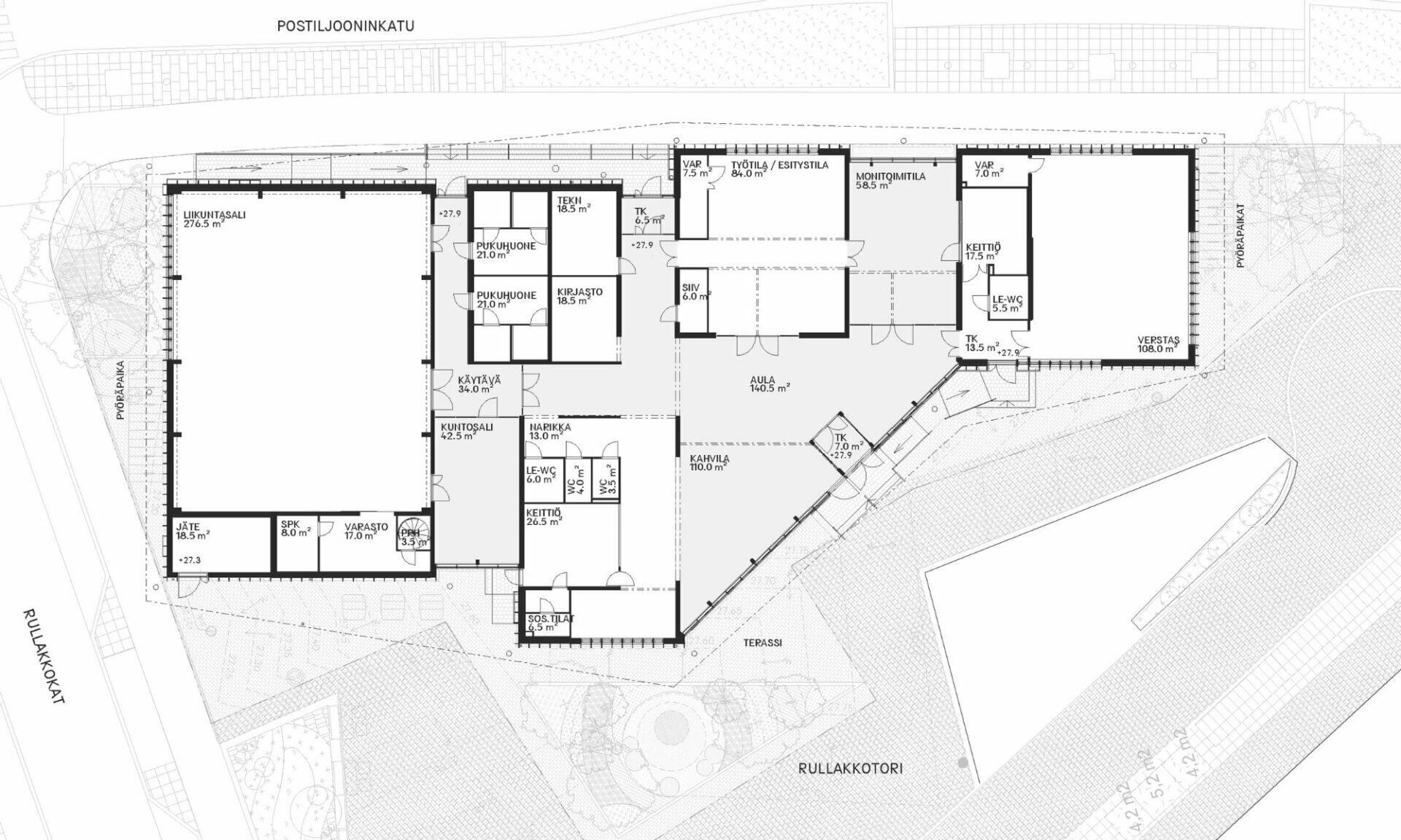
Postivarikko sijaitsee Postipuiston sydämessä ja alueen keskeisen toritilan, Rullakkotorin laidalla. Erikokoiset ja -luonteiset tilat mahdollistavat monipuoliset käyttötarkoitukset ja toiminnot. Esimerkiksi rakennuksen eteläpäässä sijaitseva verstas on asukkaiden puutyö-, askartelu-, ja rakentelukäyttöön. Aulaan avautuu puolestaan erilaisiin käyttötarkoituksiin, kuten kokouksiin ja ryhmätöihin sopiva monitoimitila, johon liittyy yhteiskäyttökeittiö.
Aula
Aulatilat ovat vapaasti kaikkien käytössä Postivarikon aukioloaikoina.
Kahvila
Aulan yhteydessä tulee sijaitsemaan myös viihtyisä kahvila, jonka yrittäjä tarkentuu myöhemmin.
Verstas
Verstaan tilat tulevat olemaan vuokralaistaloyhtiöiden asukkaiden käytössä ilmaiseksi. Tila on myös varattavissa ja siellä voi vaikkapa huoltaa ja korjata omia urheiluvälineitä itsenäisesti. Tilassa järjestetään myös maksullisia ohjattuja kursseja.
Liikuntasali
Liikuntasaliin varataan vapaavuoroja asukkaille esimerkiksi koripallon, lentopallon ja salibandyn pelaamiseen. Vapaat vuorot ovat ilmaisia alueen asukkaille. Myös omia harrastevuoroja vaikkapa sulkapallon pelaamiseen on mahdollista varata maksua vastaan.
Kuntosali
Kuntosali tulee olemaan veloituksetta asukkaiden käytössä.
Työ ja esiintymistila
Työ- ja esiintymistilaa asukkaat voivat käyttää etätyöskentelyyn, tapahtumien tai juhlien järjestämiseen. Työpöydät ovat alueen asukkaiden varattavissa ja ilmaisia. Asukkaiden omia tilaisuuksia varten varattuna tila on maksullinen.
Monitoimitila ja keittiö
Monitoimitila ja siihen liittyvä keittiö tulevat olemaan asukkaiden käytössä ilmaiseksi. Asukkaat voivat käyttää monitoimitilaa ja keittiötä myös kokousten tai juhlien järjestämiseen. Asukkaiden omia tilaisuuksia varten varattuna tila on maksullinen. Monitoimitilassa kaikkien käytössä on lisäksi leluja ja pelivälineitä.
Kirjasto
Kirjasto tulee olemaan kaikkien vuokralaistaloyhtiöiden asukkaiden käytössä ilmaiseksi. Tilaa voidaan käyttää myös etätyöskentelyyn, lautapeleihin tai opiskeluun.
[Havainnekuvat: Arkkitehtitoimisto Inaro]
Postivarikko on alueen yhteisöllinen sydän, joka kokoaa asukkaat yhteen.
Kuvia
Postivarikon sisäänkäynti
Kahvilatila
Liikuntasali
Monitoimitila
Verstas
Pohjakuva
Tila
Tutustu Postipuiston asuinalueeseen ja myytäviin asuntoihin
Kysy lisätietoja

Lauri Riikonen
Suunnittelupäällikkö | Asuntorakentaminen
+358 40 7676114 lauri.riikonen@fira.fi




